| Prijs | € 470.000,- k.k. |
| Type object | Woonhuis, eengezinswoning, geschakelde woning |
| Perceeloppervlakte | 264 m² |
| Woonoppervlakte | 166 m² |
| Aanvaarding | In overleg |
| Status | Verkocht |
In de luwte gelegen, mooie geschakelde woning. Gelegen in de nabijheid van het centrum, openbaar vervoer, uitvalswegen en voorzieningen van Oss. Dit huis met uitbouw, garage/ werkkamer en keurig aangelegde tuinen, woonkamer, eetkamer, tuinkamer, keuken met inbouwapparatuur, , badkamer, vier slaapkamers en toilet is een ideale gezinswoning. NHG mogelijk. Bouwjaar woonhuis: 1974 Woonoppervlakte: ca. 166m2 incl. garage/werkkamer 18m2 Perceeloppervlakte: 264m2 (2 percelen) Energielabel: ? Aantal kamers: 7 Aantal slaapkamers: 4
Begane grond:
• dubbele oprit waarvan 1 achter een poort
• entree met meterkast (7 groepen en 2 aardlekschakelaars), toegang naar woonkamer en keuken, trapopgang; afwerking geheel in lichte kleuren, de wanden en
plafonds zijn afgewerkt met stucwerk
• de toiletruimte is v.v. een toilet en een fonteintje; de wanden zijn v.v. tegelwerk in licht grijze kleur
• royale L vormige woon- en eetkamer met een open haard, tuindeuren naar de zijtuin en een erker aan de voorkant en zijkant waardoor het een mooie en lichte
ruimte is, in deze ruimte is een airco (verwarming en koeling) gemonteerd; plafond en wanden v.v. stucwerk, toegang tot de (open) keuken en tuinkamer
• tuinkamer met veel glas en grote lichtkoepel, ook hier veel lichtinval en zicht op de achtertuin
• keuken in de kleur zwart met een natuurstenen werkblad, 5 pits gaskookplaat, rvs afzuigkap, combimagnetron, vaatwasser, inbouw koelkast. Aansluitend aan de
keuken is toegang tot de garage/werkkamer. Momenteel is deze ruimte v.v. een pui met glas en een loopdeur maar door plaatsing garagedeur weer te gebruiken
als garage; de vloer is afgewerkt met tegels, de wanden zijn v.v. metselwerk in de kleur wit. Deze ruimte is v.v. verwarming, een keukenblok en de aansluitingen
voor het witgoed
• de begane grond is recent v.v. een mooie lichte (houtlook) pvc vloer, ook is er vloerverwarming maar deze is nooit gebruikt door de huidige eigenaren 1e verdieping: • de overloop biedt toegang tot twee royale slaapkamers, inbouwkasten, trapopgang 2e verdieping en de badkamer • de slaapkamers zijn respectievelijk 18m2 en 6m2 groot en in lichte kleuren afgewerkt • de badkamer is geheel v.v. wandbetegeling in lichte kleuren en is v.v. een hoekligbad, een douchecabine, een vrijhangend toilet en een wastafelmeubel • deze verdieping is v.v. kunststof kozijnen met isolerende beglazing
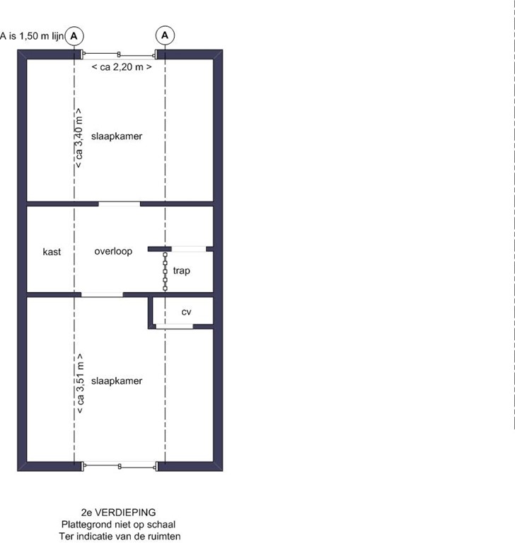
2e verdieping: • de overloop biedt toegang tot twee slaapkamers en is v.v. een inbouwkast • in de grote slaapkamer is in een kast de cv-installatie opgesteld (Intergas HR combi 2011)
Tuin: Deze woning heeft een tuin aan de achterzijde welke tevens kan dienen als oprit, deze tuin/oprit is afgesloten met een dubbele poort en grenst aan de tuinkamer. Grenzend aan de eetkamer is de zijtuin met veel privacy en ingericht met sierbestrating en perken, de ligging is zuid-west en een prima plek voor de middag en avondzon. De voortuin is eveneens met perken en sierbestrating aangelegd en geeft uitzicht op een groenstrook, aansluitend aan deze tuin is de oprit.
Algemeen: Deze praktisch ingedeelde gezinswoning verkeert zowel van binnen als van buiten in een goede staat van onderhoud, de bg is v.v. vloerverwarming (al 20 jaar niet gebruikt). De begane grond en eerste verdieping is v.v. isolerende beglazing, de tweede verdieping is v.v. enkele beglazing, de spouwmuren zijn enkele jaren geleden v.v. isolatie. Door de huidige inrichting van de garage als werkkamer is deze woning prima geschikt voor werken aan huis of grote gezinnen met behoefte aan een extra speelkamer. Ligging: Dit woonhuis is gelegen aan het begin van een hofje met vrije uitkijk aan de voorzijde. In de directe omgeving van de woning vindt u o.a. het station, de uitvalswegen, speel- en sportvoorzieningen, scholen en winkels, zelfs het centrum is goed en snel bereikbaar. Voldoende parkeerruimte in de straat en op eigen terrein.
| Referentienummer | 05551 |
| Vraagprijs | € 470.000,- k.k. |
| Status | Verkocht |
| Aanvaarding | In overleg |
| Aangeboden sinds | Dinsdag 18 november 2025 |
| Laatste wijziging | Vrijdag 20 maart 2026 |
| Type object | Woonhuis, eengezinswoning, geschakelde woning |
| Soort bouw | Bestaande bouw |
| Bouwperiode | 1974 |
| Dakbedekking | Dakpannen |
| Type dak | Zadeldak |
| Isolatievormen | Gedeeltelijk dubbel glas Kierdichting Muurisolatie Spouwmuren |
| Perceeloppervlakte | 264 m² |
| Woonoppervlakte | 166 m² |
| Woonkameroppervlakte | 66,72 m² |
| Keukenoppervlakte | 8,61 m² |
| Inhoud | 440 m³ |
| Aantal bouwlagen | 3 |
| Aantal kamers | 8 (waarvan 4 slaapkamers) |
| Aantal badkamers | 1 (en 1 apart toilet) |
| Ligging | Aan park Aan rustige weg Dichtbij openbaar vervoer In woonwijk Nabij snelweg Nabij treinstation |
| Type | Voortuin |
| Oriëntering | Zuiden |
| Staat | Prachtig aangelegd |
| Tuin 2 - Type | Zijtuin |
| Tuin 2 - Oriëntering | Zuid-west |
| Tuin 2 - Heeft een achterom | Ja |
| Tuin 2 - Staat | Prachtig aangelegd |
| Tuin 3 - Type | Achtertuin |
| Tuin 3 - Oriëntering | Zuid-west |
| Tuin 3 - Heeft een achterom | Ja |
| Tuin 3 - Staat | Prachtig aangelegd |
| Energielabel | D |
| CV ketel | HR combi |
| Warmtebron | Gas |
| Bouwjaar | 2011 |
| Combiketel | Ja |
| Eigendom | Eigendom |
| Aantal parkeerplaatsen | 3 |
| Warm water | CV-ketel |
| Verwarmingssysteem | Airconditioning Centrale verwarming Open haard |
| Badkamervoorzieningen | Douche Ligbad Toilet Wastafelmeubel |
| Heeft airco | Ja |
| Heeft kabel-tv | Ja |
| Heeft een open haard | Ja |
| Heeft een rookkanaal | Ja |
| Glasvezelaansluiting aanwezig | Ja |
| Tuin aanwezig | Ja |
| Telefoonaansluiting aanwezig | Ja |
| Kadastrale aanduiding | Oss G 1372 |
| Perceeloppervlakte | 257 m² |
| Omvang | Geheel perceel |
| Eigendomsituatie | Eigen grond |
| Kadastrale aanduiding | Oss G 1373 |
| Perceeloppervlakte | 7 m² |
| Omvang | Geheel perceel |
| Eigendomsituatie | Eigen grond |